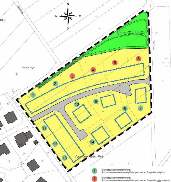
Übersicht Baugrundstücke im Baugebiet „Großer Schüffel – 1. Erweiterung“
Liebe Bürgerinnen und Bürger,
in diesem Abschnitt sind die aktuellen Status der Bauplätze des Baugebiet „Großer Schüffel – 1. Erweiterung“ dargestellt:

8: 747m² – 65€/m² – zum Verkauf